3 rooms Penthouse in Wesel, Germany No. 195251

€ 451,843 € 3,674 per m²
Wesel, Germany
-
Bedrooms
1
Bathrooms
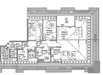
123 m²
Living space
3
Rooms
Completion Date: IV quarter, 2011 Property Type: Penthouse Construction Status: Off plan

Features

Features
  • Balcony
Indoor facilities
  • Storage room
  • Elevator
Outdoor features
  • Car park
Additional Information
  • Country: Germany
Contact Properties

General Inquiry Property Information.