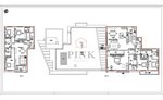
5 bedrooms Penthouse in Funchal, Portugal No. 176697

€ 1,497,911 € 2,229 per m²
Funchal, Portugal
5
Bedrooms
6
Bathrooms
672 m²
Living space
-
Rooms
Completion Date: IV quarter, 2023 Property Type: Penthouse Construction Status: Off plan

Features

Features
  • Balcony
  • Terrace
Indoor facilities
  • Storage room
  • Elevator
Outdoor features
  • Garden
  • Swimming pool
Additional Information
  • Country: Portugal
Contact Properties

General Inquiry Property Information.