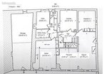
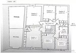
7 bedrooms Townhouse in Charvonnex, France No. 275753

€ 468,423 € 2,179 per m²
Charvonnex, France
7
Bedrooms
-
Bathrooms
215 m²
Living space
10
Rooms
Completion Date: - Property Type: Townhouse Construction Status: Secondary

Features

Indoor facilities
  • Storage room
  • Garage
Outdoor features
  • Car park
Additional Information
  • Country: France
Contact Properties

General Inquiry Property Information.